The Guinness Partnership

Brock Street, London

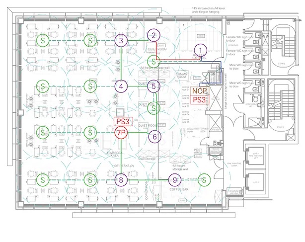
Guinness Logison Floor Plan

Increasing privacy levels and reducing interruptions across 5 floors and 20,000 square feet of open plan and meeting areas.

Affordable housing and care provider The Guinness Partnership added 30 Brock Street to their portfolio in December 2014. Their office space was spread across 5 floors. Due to the low mechanical noise levels (sub 30dBA), consultants AAD recommended the application of sound masking to increase the building’s noise floor to the recommended levels (circa 45dBA in open plan areas).

Acoustic Comfort were engaged by leading Design & Build firm Oktra to provide the sound masking element, including design, installation and commissioning of the LogiSon system.

Due to the low plenum (circa 150mm) we were required to provide an alternative speaker application to the standard 100mm diameter upward facing speakers. In this instance it was necessary to use the pyramid-style 4-directional speakers, which ensured an even and unobtrusive distribution of sound throughout the space, despite the conditions.

Sound Level Test Guinness Open1

Sound level tests: open plan areas

These example test results measure sound travelling across an open plan space.

  • For both tests, a person was positioned at the same desk.
  • Sound pressure measurements were taken at a distance of 12 metres from the desk.
  • For the first half of each test, there was no speech.
  • For the second half, the person at the desk spoke with a ‘telephone speaking’ voice.
Sound Level Test Guinness Closed2

Sound level tests: cellular offices

These example test results measure sound leaking from a closed meeting room into an open plan area.

  • For both tests, a person was positioned in the conference room with the door closed.
  • Sound pressure measurements were taken in the open plan area.
  • For the first half of each test, there was no speech.
  • For the second half, the person in the conference room spoke with a ‘presentation’ voice.
Download
Download Case Study as a PDF pdf